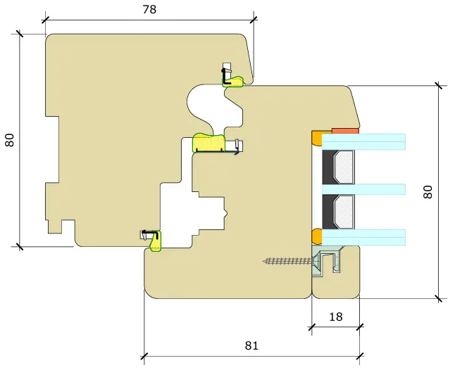
Legno80
|
Caratteristica
|
|
Dettaglio
|
|---|---|---|
|
Materiale
|
|
Legno lamellare
|
|
Conduttività termica
|
|
0.13 (Legno tenero)
|
|
Dimensioni
|
Telaio
|
80 mm / 78 mm
|
|
|
Anta
|
80 mm / 81 mm
|
|
Finitura
|
|
A campione, Ral a scelta
|
|
Vetro
|
|
3+3 Low e/15w.e/4/15w.e/3+3 Low e
|
|
Ug
|
|
0.60 W/m²K
|
|
Trasmittanza Luminosa % vetro
|
|
71
|
|
Fattore solare
|
|
48
|
|
Trasmittanza termica finestra
|
|
Uw 1.06 W/m²K
|
|
Isolamento acustico
|
|
37 (-1;-5)
|
|
Impermeabilità all’aria
|
|
CLASSE 4
|
|
Resistenza al vento
|
|
CLASSE C5
|
|
Tenuta all’acqua
|
|
CLASSE E1200
|